文化シャッター株式会社
後付窓シヤッター
壁が仕上がったあとから取付ける業界初の
後付窓シヤッター
が
3機種
そろって新登場!!
換気・採光タイプ
カルエアタイプ
(電動のみ)
スタンダードタイプ
カルロッシュタイプ
(手動・電動)
エコノミータイプ
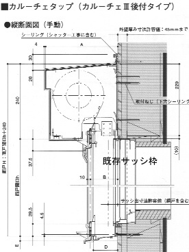
カルーチェタイプ
(手動・電動)
・色については、
ブラック、プロンズ、ホワイト
の3色を標準色としてご用意。
また、意匠性、工事施工性にも配慮して開発しています。
※電動の場合の電気工事は別途工事になります。
尚、電気工事は必ず電気工事店にご依頼ください。
(納まり参考図)
お問い合わせ
TEL0274-22-0617/FAX0274-24-2597
Email:koikegarasu@bay.wind.ne.jp